Объявление: Обмен квартиры и помещения под собственный бизнес на Россию, так же Крым
  • Домой Домой
  • Разместить объявление Разместить объявление
  • Регион:
    Все регионы [Поменять]
Домой >> Украина >> Кировоградская область >> Недвижимость >> Обмен квартир и помещений

Обмен квартиры и помещения под собственный бизнес на Россию, так же Крым

Центральная часть города
- КВАРТИРА адрес : Украина, г.Знаменка, Кировоградская обл.
ул.Чайковского, 30Е
расположена на первом этаже 5-ти этажного жилого дома
площадь - 80 м2
окна – металопластик (2-й стеклопакет) с защитными роллетами, внутри на окнах под цвет обоев светозащитные «роллы»
отопление – индивидуальное : котел газовый (отопление+гор.вода)
водопровод, канализация - централизованное
двери – входные (металл)
- межкомнатные МДФ (светлый дуб)
Полы - по всей квартире утепление пенопластом
Источник тепла по комнатам -радиаторные панели 500Х2000 (очень тепло)
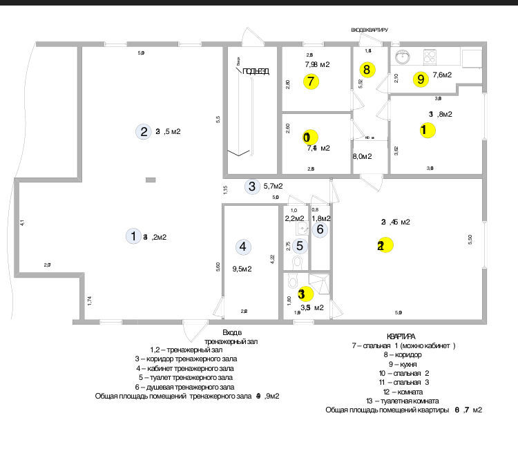
1.кухня – 10 м 2
-пол плитка , с эл.подогревом
- кухня полностью укомплектована
–стенка, встроенная техника :
-резервный электробойлер 50л (на кухню и сан.узел)
-газовый котел
-мойка
-фильтр воды
-варочная панель (газ,электроплитка)
-духовой шкаф
комната 1 - 9 м2
- пол ламинат
-стены обои
-потолок шпатлевка ,окраска
-1,5 кровать с матрасом
комната 2 - 9 м2
- пол ламинат
-стены обои
-потолок шпатлевка ,окраска
-диван малютка

комната 3 - 14 м2
- пол ламинат
-стены обои
-потолок натяжной
-2 сп. кровать с матрасом
зал - 30 м2
- пол ламинат
-стены обои
-потолок натяжной
санузел - 4 м2
-пол плитка , с подогревом отопления
-душевая кабинав
-унитаз
-умывальник
-смеситель гигиены
-полотенцесушилка
-эл.бойлер (100 л)
коридор - 6 м2
-пол плитка , с эл.подогревом

НЕЖИЛОЕ ПОМЕЩЕНИЕ 90 М2 ТРЕНАЖЕРНЫ ЗАЛ
Украина, г.Знаменка ,Кировоградская обл.
ул.Чайковского ,30Д

Стоимость указана за все, в том числе и тренажёры.
Торг уместен.

История города непосредственно связана с железной дорогой. Знаменка была основана в 1869, как станция на железной дороге Елисаветград-Крюков рядом с Черного лесом.
Теперь Знаменка это крупный железнодорожный узел (станция сортировочная, локомотивное депо, вагонное депо).Что позволяет обеспечивать стабильный жизненный уровень жителей города. Рядом школы и супермаркеты.

Регион: Кировоградская область
Телефон: 8(985)6952003, +38(95)6654803

 Приложенные картинки 
Объявление но. 1260320
Срок объявления:
от 10 мар 2018, 11:39
до 02 янв 2026, 11:39
Всего просмотров: 1151
Пометить объявление как:
, , ,

Правовая оговорка: Администрация не несет ответственность за стиль и содержание объявлений. Если предложение, содержащееся в объявлении, нарушает законы РФ, международные законы, либо моральные, этические или общественные нормы, мы просим Вас сообщить нам об этом воспользовавшись ссылкой "Сообщить о нарушении" которая находится в правой колонке на странице объявления. Правила пользования сайтом

Связаться с администрацией сайта